| Prijs | € 795.000,- k.k. |
| Type object | Horecapand, Luxe restaurant |
| Perceeloppervlakte | 206 m² |
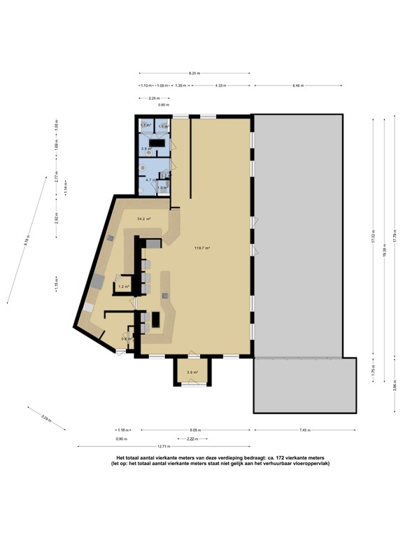
| Totale VVO | 287 m² |
| Aanvaarding | In overleg |
| Status | Verkocht |
Te koop: Grand Café & Restaurant De Smederij – Een icoon in Goes en een unieke horecakans Maak uw horecadroom waar met deze gevestigde naam en toplocatie in het hart van Zeeland! Grand Café & Restaurant De Smederij is niet zomaar een horecazaak – het is een begrip. Met een schitterende ligging aan de Dam in het historische centrum van Goes, een hoogwaardig interieur en een terras dat al jaren behoort tot de landelijke Misset Terras Top 100, biedt De Smederij alles wat een ambitieuze ondernemer nodig heeft om een succesverhaal te schrijven. Dit is dé kans om een volledig ingerichte, bloeiende horecazaak over te nemen en uw eigen culinaire visie tot leven te brengen. De ultieme locatie Gelegen aan de Dam, omringd door groen en water, combineert De Smederij rust en toegankelijkheid met de levendigheid van het stadscentrum. Dankzij de uitstekende bereikbaarheid – zowel te voet, per fiets als met de auto – trekt deze toplocatie een divers publiek: van winkelend publiek en zakenlieden tot toeristen en lokale vaste gasten. De parkeerfaciliteiten in de nabije omgeving maken het extra aantrekkelijk voor bezoekers. Uniek terras: een landelijk erkend pareltje Het prachtige terras van De Smederij is een absolute trekpleister. Met uitzicht op het water van 'stadspark de Veste' en omringd door groen, biedt het een oase van rust midden in de stad. Het terras staat al jarenlang hoog in de landelijke Misset Terras Top 100, wat de aantrekkingskracht voor gasten – en de bekendheid van de zaak – versterkt. Deze unieke buitenruimte is een gouden kans voor ondernemers die het potentieel van een hoogwaardige terras locatie willen benutten. Dankzij de overkapping is het terras ook perfect geschikt voor wisselende weersomstandigheden. Het terras biedt ruimte voor 100 tot 140 zitplaatsen. Een sfeervolle en veelzijdige inrichting Bij binnenkomst ademt De Smederij warmte en klasse. Het restaurant is stijlvol ingericht met hoogwaardige materialen, waaronder een karakteristieke houten bar, prachtige kroonluchters en comfortabele zitplaatsen. Het lichte interieur met grote ramen en hoge plafonds creëert een open en uitnodigende sfeer, ideaal voor een breed scala aan gasten en gelegenheden. Of het nu gaat om een intiem diner, een zakelijke bijeenkomst of een sfeervol familiefeest, deze ruimte is veelzijdig en klaar om direct te worden benut. De binnenruimte biedt ruimte voor 60 tot 70 zitplaatsen. Volledig ingericht en direct te exploiteren De Smederij is tot in de puntjes verzorgd en volledig uitgerust met: - Een professionele keuken: Voorzien van moderne apparatuur waarmee u direct aan de slag kunt. - Een uitgebreide bar: Centraal gelegen en perfect om gasten te ontvangen en te bedienen. - Meubilair en decor: Hoogwaardige tafels, stoelen en sfeerelementen die zorgen voor een direct gebruiksklaar pand. - Ruime opslagmogelijkheden: Ideaal voor een efficiënte bedrijfsvoering. Met een solide fundament en een gevestigde naam biedt De Smederij een scala aan uitbreidingsmogelijkheden: - Verruim de openingstijden: Introduceer ontbijtservices of breid uit met een late-night concept. - Ontwikkel een nieuwe menukaart: Speel in op trends zoals streekproducten, duurzaamheid of themadiners. - Organiseer evenementen: Denk aan bruiloften, verjaardagen, zakelijke diners en proeverijen. - Samenwerkingen: Werk samen met lokale bedrijven, verenigingen en toeristische organisaties om de zichtbaarheid te vergroten. - Gebruik de landelijke bekendheid: Bouw voort op de naamsbekendheid van het terras en profileer De Smederij als dé horecaplek van Goes. Waarom De Smederij kiezen? De Smederij heeft een solide reputatie opgebouwd met positieve beoordelingen op Google, TripAdvisor, Eet.nu en andere gerenommeerde beoordelingssites. Klanten prijzen zowel de kwaliteit van het eten als de uitstekende service, wat zorgt voor een stabiele klantenkring en een uitstekende basis voor toekomstige groei. De combinatie van positieve mond-tot-mondreclame en online beoordelingen maakt dit restaurant een aantrekkelijke kans voor elke ondernemer die wil profiteren van een goed gevestigde naam in de horecasector. Bewezen succes: Al jarenlang een geliefde bestemming voor zowel locals als toeristen. Landelijke erkenning: Het terras behoort tot de top van Nederland volgens de prestigieuze Misset Terras Top 100. Perfecte ligging: Een centrale plek in Goes met uitstekende bereikbaarheid en parkeermogelijkheden. Direct gebruiksklaar: Het restaurant is volledig ingericht en klaar om uw visie werkelijkheid te maken. Veelzijdigheid: Geschikt voor uiteenlopende concepten, van fine dining tot casual lunches of evenementenlocatie. De ultieme kans voor horecaliefhebbers Bent u een ervaren ondernemer die zoekt naar uitbreiding of een starter met grote dromen? Grand Café & Restaurant De Smederij biedt alles wat u nodig heeft om succesvol te zijn: een toplocatie, een uitstekende reputatie, landelijke erkenning en een prachtige, volledig uitgeruste horecagelegenheid. Dit is uw kans om een gevestigde naam nieuw leven in te blazen of voort te bouwen op de huidige sterke basis. Zet uw culinaire dromen om in werkelijkheid en maak van De Smederij de nummer één horecazaak van Goes en omstreken. Neem vandaag nog contact op! In collegiale verkoop met horecamakelaar Jos Schröer.
| Referentienummer | 00006 |
| Vraagprijs | € 795.000,- k.k. |
| Status | Verkocht |
| Aanvaarding | In overleg |
| Aangeboden sinds | Dinsdag 3 december 2024 |
| Laatste wijziging | Vrijdag 4 april 2025 |
| Type object | Horecapand, Luxe restaurant |
| Soort bouw | Bestaande bouw |
| Bouwperiode | 1880 |
| Perceeloppervlakte | 206 m² |
| VVO | 287 m² |
| Verkoopoppervlakte | 235 m² |
| Ligging | In centrum |
| Lokale voorzieningen | Bank binnen 500 meter Geldautomaat binnen 500 meter Recreatie binnen 500 meter Restaurant binnen 500 meter Winkel binnen 500 meter Supermarkt op 500 meter tot 1000 meter |
| Bereikbaarheid | Bushalte binnen 500 meter Busknooppunt op 500 meter tot 1000 meter Treinstation op 500 meter tot 1000 meter Afrit van de snelweg op 1500 meter tot 2000 meter |
| Heeft een terras | Ja |
| Kadastrale aanduiding | Goes D 5203 |
| Perceeloppervlakte | 206 m² |
| Omvang | Geheel perceel |
| Eigendomsituatie | Eigendom belast met erfpacht |
| Lasten | € 2.430,40 per jaar |