Beschrijving

Op een heerlijke plek, op slechts een paar minuten loopafstand van het centrum, ligt deze prima onderhouden tussenwoning met sfeervolle woonkamer met pelletkachel, prima badkamer en keuken, twee slaapkamers en een fijne tuin. 

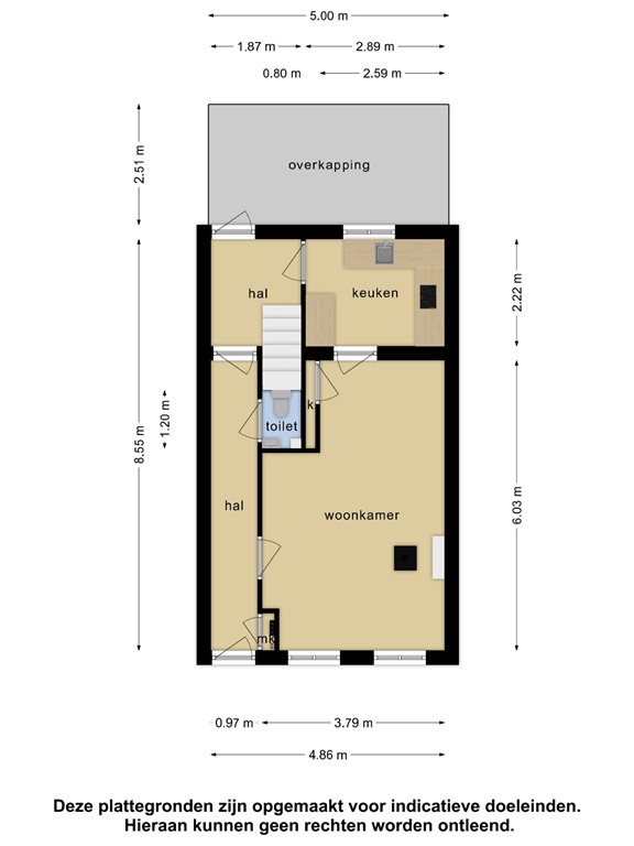
Indeling begane grond: 
Entree, hal met meterkast en toilet en toegang tot zowel de woonkamer alsook de keuken. De woonkamer is bijzonder sfeervol door de hoge plafonds, fraaie pelletkachel en houten vloer. De zithoek is aan de voorzijde gesitueerd, de eethoek aan de achterzijde. Hier bevindt zich een praktische vaste kast en de doorgang naar de keuken. De keuken is uitgevoerd in een lichte kleurstelling en voorzien van diverse inbouwapparatuur. 

Eerste verdieping: 
Overloop, de slaapkamer die aan de achterzijde is gelegen heeft tevens toegang tot een praktische bergruimte waar ook de CV-ketel is opgesteld. De slaapkamer aan de voorzijde is voorzien van een flinke dakkapel, op deze kamer hangt tevens de omvormer van de zonnepanelen. De zonnepanelen worden gehuurd voor een bedrag van ca. € 33 per maand. De badkamer is modern uitgevoerd en voorzien van een aparte douche, wastafelblad met waskom en de aansluiting ten behoeve van de wasmachine. 

De achtertuin, voorzien van een vrije achterom, is vrij diep en biedt veel privacy door het feit dat er achter de woning geen ander bebouwing is gesitueerd. Direct achter de woning is een fraaie veranda gebouwd waardoor het al vroeg in het voorjaar hier heerlijk toeven is. Door het beschutte plekje tegen de gevel is het ook een prima plek voor gezellige lange zomeravonden buiten. De berging is ideaal voor het stallen van de fiets of voor het opbergen van extra spulletjes. 

De woning ligt letterlijk op een steenworp afstand van het Goese stadscentrum. Goes is een stad met een groot en divers winkelaanbod met daarnaast tal van gezellige terrasjes en goede restaurants. Parkeren kan met een vergunning in de straat of op het achtergelegen parkeerterrein.

Kenmerken