Beschrijving

Op een mooie locatie aan de rand van het dorp, grenzend aan de zeedijk, staat dit sfeervolle en statige vrijstaande huis met garage. De woning staat op een groot perceel eigen grond, heeft vier slaapkamers en een woonoppervlakte van 110 m2. De woning, gebouwd in 1928 zoals de tekst op de voorgevel verklapt, is in de basis degelijk uitgevoerd maar heeft twee rechterhanden nodig om de charme en het hedendaags comfort weer terug te brengen. 

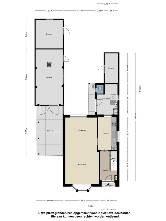
Indeling begane grond: 
Entree, hal met fraaie trapopgang, meterkast en praktische trapkast. De woonkamer is uitgevoerd met de zithoek aan de voorzijde, deze heeft een fijne lichtinval door de fraaie erker. De eethoek bevindt zich aan de achterzijde van de kamer en heeft zicht op de tuin. De keuken heeft een ruime en praktische indeling, met een eenvoudige afwerking. Er is voldoende ruimte voor het plaatsen van een bar of tafel. De praktische bijkeuken is ruim van opzet, voorziet in de opstelling van de wasapparatuur en cv-ketel en geeft toegang tot het toilet. 

Indeling eerste verdieping: 
Overloop met vaste bergkast. Slaapkamer aan de voorzijde van de woning, gesitueerd over de gehele breedte van de woning. Tweede kamer aan de linkerzijde van de woning en de derde slaapkamer aan de achterzijde van de woning. De ruime badkamer is uitgevoerd in een lichte kleurstelling en voorzien van een aparte douche, tweede toilet en wastafel. Achter de badkamer ligt een vierde kamer. Deze is heerlijk licht en hoog doordat de kamer open is tot in de nok. 

Indeling tweede verdieping: 
Deze verdieping is bereikbaar middels een vlizotrap en geeft bijzonder veel bergruimte. 

Naast de woning bevindt zich een carport met daarachter een stenen vrijstaande garage. Ideaal voor het stallen van de auto, een motor of om te gebruiken als grote berging. Aangebouwd bevindt zich tevens een tweede berging. De tuin, meer dan 30 meter diep (!), is op dit moment grotendeels nog aan te leggen maar biedt talloze mogelijkheden. Bovendien ligt de achtertuin fantastisch vrij door de ligging direct achter de zeedijk. De achtertuin is ook via een poort aan de zijkant van de woning bereikbaar. 

Het dorp Hansweert heeft een rijke geschiedenis ten tijden van de intensieve scheepvaart, 'Klein Antwerpen' was destijds de bijnaam van dit mooie dorp. Door de aanleg van het nieuwe Schelde -Rijnkanaal werd het dorp rustiger, maar de mooie ligging bleef. Het dorp ligt centraal ten opzichte van alle uitvalswegen en het is heerlijk wandelen en fietsen in de omgeving. Bovendien is de leefbaarheid is het dorp zeker goed te noemen, het dorp heeft een moderne supermarkt, twee basisscholen en een rijk verenigingsleven.

Kenmerken