Beschrijving
Op een heerlijke plek in de wijk 'Goes-West' ligt deze moderne halfvrijstaande woning met diepe tuin, moderne badkamer en keuken, 5 slaapkamers en dakterras.
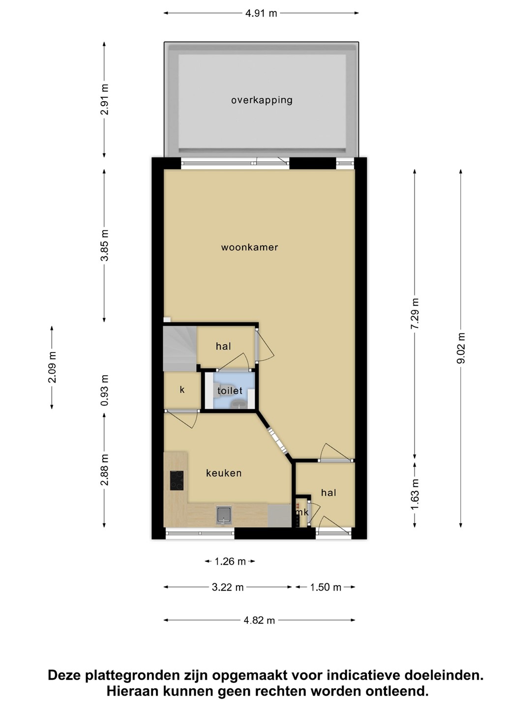
Indeling begane grond:
Hal met meterkast en toegang tot de woonkamer. Aan de voorzijde van de woning is de keuken gesitueerd. Deze is uitgevoerd in een moderne kleurstelling en voorzien van diverse inbouwapparatuur. Via de keuken is ook de praktische trapkast bereikbaar. Vanuit het raam in de keuken heb je fraai zicht op het vrije zicht op het groen aan de voorzijde van het huis. De zithoek is tuingericht en heeft bijzonder veel lichtinval door de hoge ramen die doorlopen tot de vloer. De wanden zijn uitgevoerd in een lichte kleurstelling en de vloer is voorzien van PVC.
Indeling eerste verdieping:
Overloop, ruime slaapkamer aan de voorzijde. Omdat de slaapkamer de gehele breedte van de woning heeft is deze heerlijk ruim, door de vele ramen ook lekker licht. De badkamer is modern uitgevoerd en voorzien van een aparte douche, tweede toilet en wastafel. Aan de achterzijde liggen de tweede en derde slaapkamer.
Indeling tweede verdieping:
Overloop met toegang tot de opstelling van de wasapparatuur en de CV-ketel. Via de overloop is ook het dakterras te bereiken. Op deze verdieping liggen tevens een prima vierde en vijfde (slaap)kamer.
De woning heeft een diepe zonnige tuin met stenen berging. Ideaal in combinatie met de vrije achterom voor het stallen van de fiets en opbergen van overige spullen. De tuin is voorzien van veel terrassen en bloembakken met groene beplanting. De veranda zorgt voor een heerlijk beschutte plek om al vroeg in het voorjaar van het zonnetje te genieten of juist te genieten van lange zomeravonden in de tuin. Parkeren kan in de parkeervakken in de straat.
De locatie van de woning is bijzonder centraal. Binnen een paar autominuten bereik je de oprit van de A58 richting zowel Bergen op Zoom / Roosendaal alsook richting Vlissingen. Even kort bij bevind zich de N256 richting Zierikzee/Rotterdam. Het stadscentrum van Goes ligt op fietsafstand en ook de woonboulevard en diverse supermarkten liggen op loop- en fietsafstand. De stad Goes beschikt over een breed aanbod van basisscholen en middelbare scholen, deze zijn per fiets allemaal prima te bereiken.