Beschrijving
Op een leuk plekje, op loopafstand van het stadscentrum, ligt deze starterswoning met grote woonkamer, 3 (slaap)kamers en prima stadstuin.
Indeling begane grond:
Entree, hal met trapopgang naar de verdieping en toegang tot de keuken en woonkamer. De woonkamer is ruim van opzet met een diepte van maar liefst 8 meter is hier veel ruimte voor een fraaie zithoek aan de voorzijde van de woning en een eethoek aan de achterzijde, met zicht op de tuin. De woonkamer beschikt over een praktische vaste kast. De aparte keuken is voorzien van diverse inbouwapparatuur en geeft toegang tot de achtergelegen bijkeuken. Hier bevinden zich de aansluitingen voor de wasapparatuur en extra bergruimte. Ook het toilet is via de bijkeuken te bereiken.
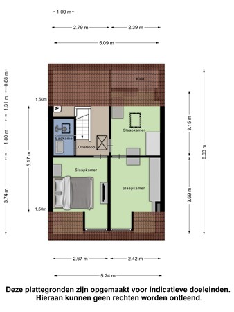
Indeling eerste verdieping:
Overloop met opstelling van de CV-ketel en veel bergruimte. De grootste slaapkamer ligt aan de voorzijde van de woning. Via de kamer aan de achterzijde is ook de tweede slaapkamer aan de voorzijde van de woning bereikbaar. De badkamer is voorzien van een wastafel en douche.
Indeling tweede verdieping:
Bergzolder, bereikbaar middels een vlizotrap.
De knusse stadstuin ligt op het oosten, dus direct aan het begin van de dag heerlijk het zonnetje in de tuin. Maar doordat de bebouwing rondom niet heel hoog is, heb je ook in de middag nog prima zon in de tuin.
De woning ligt letterlijk op een steenworp afstand van het Goese stadscentrum. Goes is een stad met een groot en divers winkelaanbod met daarnaast tal van gezellige terrasjes en goede restaurants. Parkeren kan met een vergunning in de naastgelegen straat. Uitvalswegen liggen vlakbij en meerdere supermarkten liggen op loopafstand. Ook het bus- en treinstation liggen op een paar wandelminuten afstand.